產品概述/ zhongke
一、 產品概述
1、 MH型電動葫蘆門式起重機與CD1、MD1等型號的電動葫蘆配套使用,是一種有軌運行的中小型起重機。
2、 適用起重量3-16噸,適用跨度12-30米,工作環境-20℃- +40℃內。
3、 本產品為一般用途起重機,多用于露天場所及倉庫的裝卸或抓取物料。
4、 本產品有地面操縱和室內操縱兩種形式。
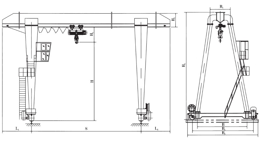
二、產品簡圖與技術規格(10t)







中科重工成功案例
注起重設備定制就解決方案提供商
起重設備定制解決方案提供商
注起重設備定制就解決方案提供商
全天候服務
現場安裝指導
免費技術培訓
終身維修服務
中科重工實力看得見
注起重設備定制就解決方案提供商
公司創建于2017年,注冊資金1.16億元,各廠區總計占地面積近50000㎡,現有員工200余人

公司配備現代化生產車間,年生產能力可達上萬臺
眾多實力客戶的選擇
注起重設備定制就解決方案提供商
推薦產品/ recommend
相關新聞/ Related news
返回頂部
在線客服
掃一掃 關注我們
掃一掃 關注我們